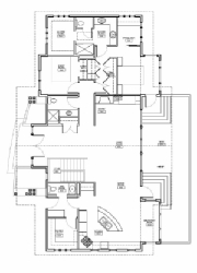
l a k e r e s i d e n c e

point | l i n e | p l a n e

psb plan
first floor layout

located on flathead lake near polson montana. the 4,000 square foot home takes advantage of views both south and north and has the mission mountains to the east. still in design the home is slated for completion in early 2006

lake view elevation
early conceptual sketch of lake elevation

psb-site
site plan

select projects to view more